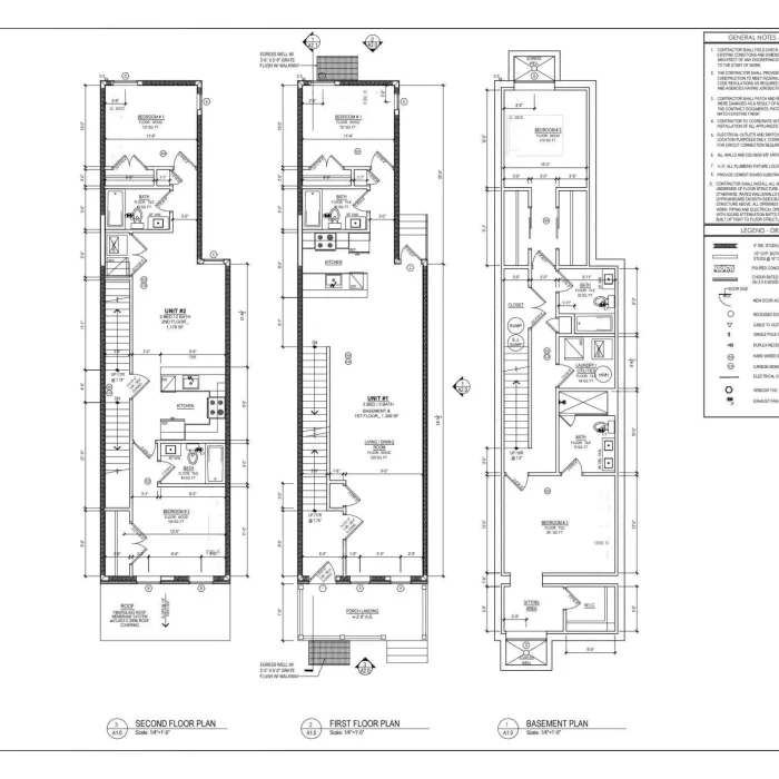
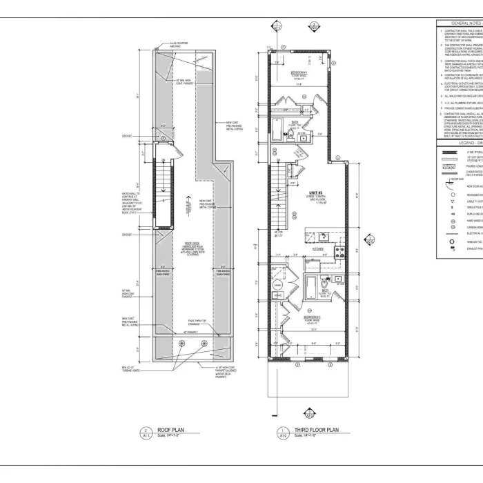
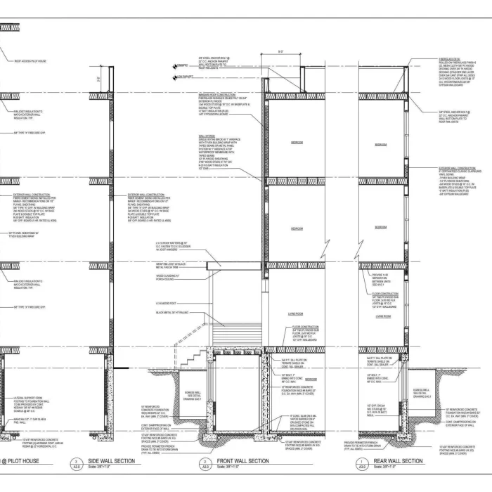
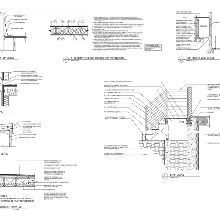
Address: 4019 Brown St. Philadelphia PA 19104
Description: 3-unit luxury multifamily project under Section 8 leasing program




























At PHL ASSET HLODINGS property management, we specialize in developing high-quality, Section 8 luxury multifamily apartment communities from the ground up.
© 2026 PHL Asset Holding Property Management All rights reserved.