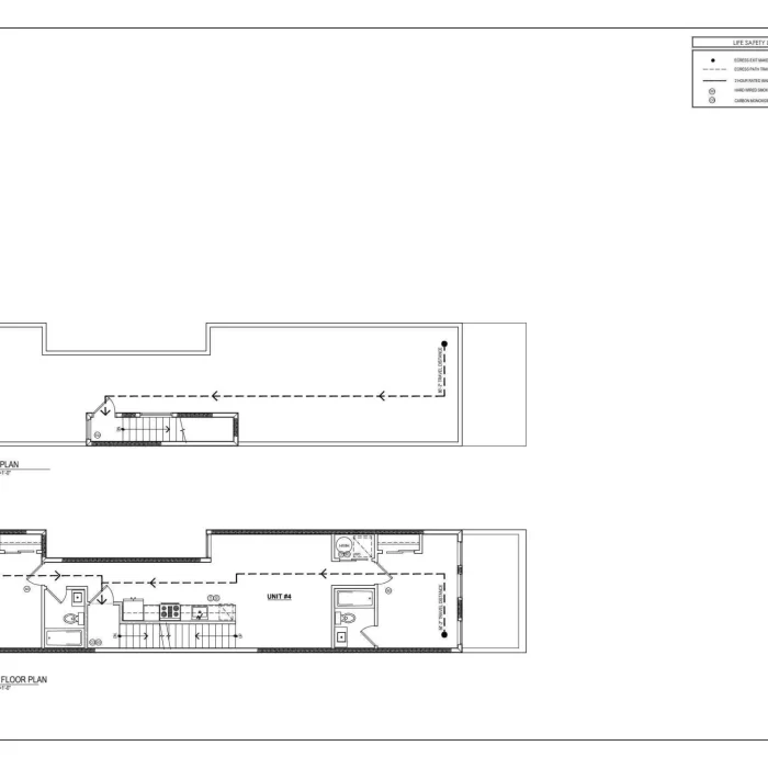
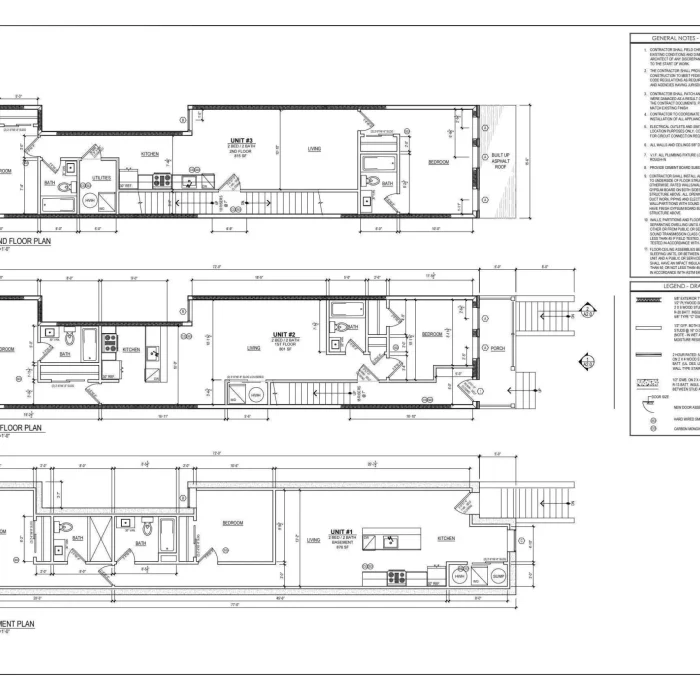
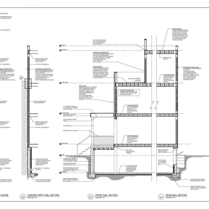
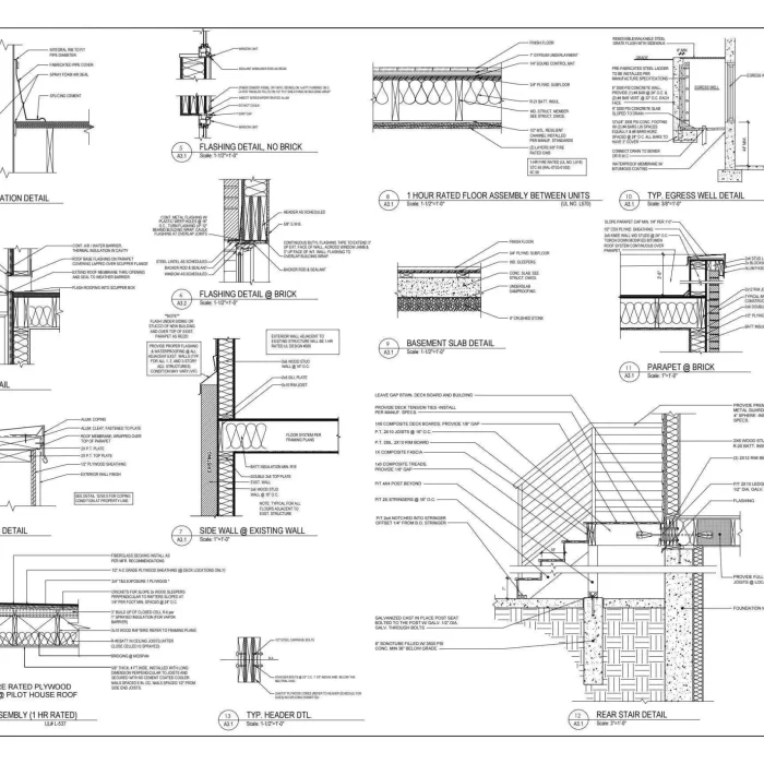
Address: 863 N. 43rd St. Philadelphia PA 19104
Description: 3-unit luxury multifamily project under Section 8 leasing program; Construction starts August 2025












At PHL ASSET HLODINGS property management, we specialize in developing high-quality, Section 8 luxury multifamily apartment communities from the ground up.
© 2026 PHL Asset Holding Property Management All rights reserved.